Luftschutzräume in Wohnhäusern
“Normale Schutzräume sollen nicht gegen Volltreffer schützen, sondern nur gegen die Wirkungen in der Nähe zerknallender [sic!] Bomben, also insbesondere gegen Luftstoß, Luftsog, Trümmer, Splitter, chemische Kampfstoffe und Einsturzlast.”
(aus: Der zivile Luftschutz, S.319)

In Braunschweig fand in den Jahren 1933–1942 ein groß angelegtes Siedlungsbauprogramm statt. Ganze Stadtteile wie die damals sogenannten “Gemeinschafts­siedlungen” Lehndorf und Braunschweig-Mascherode (Südstadt) entstanden in dieser Zeit. Aber auch kleinere Bauprojekte, die über die gesamte Stadt verteilt waren, führten zu einer Vermehrung des Wohnraums. Es entstanden dabei Mietwohnungen, Eigenheimbauten, Werkswohnungen und Wohnungen für Militärangehörige.
Mit dem Inkraftreten der 2. Durchführungsverordnung zum Luftschutzgesetz vom 4. Mai 1937 wurde für Neubauten allgemein festgelegt, dass diese mit baulichen Maßnahmen zu versehen sind, die den Anforderungen des Luftschutzes entsprechen. Dies bedeutete nichts anderes, als dass jedes neu errichtete Gebäude mit Schutzräumen für die Bewohner zu versehen sei. Dies lässt sich heute an vielen Gebäuden der Siedlungs­bauphase ab 1937 nachvollziehen. Am einfachsten meist durch die Rahmen sogenannter “Schutzraum-Blenden”, die sich außen am Gebäude befinden. Dies waren solide Metallklappen, welche die über Flur liegenden Fenster der Schutzräume, die ja ansonsten normale Kellerräume waren, splitter- und gassicher verschließen konnten (Bild).
Wenn sich die Fensteröffnungen unter Bodenebene befanden, so konnten die Schutzraum-Blenden auch im Keller untergebracht sein. Sie waren dann jedoch oft nicht mehr aus Metall, sondern aus speziellen Holzplatten (bereits am 1.6.1937 wurde von Göring der Runderlass “Schutzraumbau ohne Stahl” herausgegeben, der am 22.7.1938 durch den Runderlass “Stahlsparende Schutzraumbauten und -abschlüsse” erweitert wurde). Andere Konstruktionen sahen vor, den Kellerschacht durch das Einsetzen eines speziellen Gitterrosts mit Metallwanne gasdicht zu verschließen (Bild).
Besaßen die Luftschutzräume Zugänge ins Freie, so waren diese auch mit speziellen gas- und splittersicheren Schutzraumtüren versehen. Die Zugänge wurden zudem oft trümmersicher überbaut (Bild).

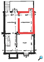
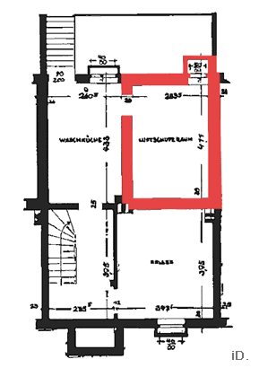
Kellergrundriss Einfamilien-Reihenhaus

Die Schutzräume wurden so ausgelegt, dass die Anzahl der Plätze der Anzahl der Bewohner des Hauses entsprach. Pro Person wurde dabei mit einem Mindestplatzbedarf von 0,6 Quadratmetern und einem Luftraumbedarf von 3 Kubikmetern gerechnet. Die Schutzräume mussten also nicht immer besonders groß sein. Für ein “Großes Eigenheim Typ MZ”, das in der “Gemeinschafts­siedlung Braunschweig-Mascherode” errichtet wurde, beträgt die Größe des Luftschutzraumes nur knapp 12 Quadratmeter (3,87m x 3,09m; Kellergrundriss), der Luftschutzraum ist damit der kleinste Kellerraum. Für ein Einfamilien-Reihenhaus, ebenfalls in der “Gemeinschafts­siedlung Braunschweig-Mascherode” gebaut, stand ebenso ein lediglich knapp 12qm großer Schutzraum zur Verfügung (2,83m x 4,11m; Bild links). Wie man den Grundrissen entnehmen kann, wurde hier zudem auf die eigentlich gewünschte Gasschleuse verzichtet.

Mit der Zunahme der Bombardierungen durch die Alliierten wurde der Ausbau behelfsmäßiger Hausschutzräume beschleunigt. Die Decke des als Luftschutzraum ausgewählten Kellerraums wurde durch Holzbalken abgestützt, die Kellertüren provisorisch gegen Gas und Brandrauch abgedichtet, Mauerdurchbrüche zum Nachbargebäude geschaffen und die äußeren Fenster zum Schutz vor Bombensplittern zugemauert oder durch Sandsäcke, Holzbalken oder Erdanschüttungen geschützt. Sitz- und Liegegelegenheiten für die Hausbewohner wurden hergerichtet.
War ein Fenster gleichzeitig als Notausstieg vorgesehen, so kamen auch sogenannte “Betonformlinge”1 als Splitterschutz zum Einsatz. Dies waren grob u-förmige Betonplatten, die in verschiedenen Längen und Dicken lieferbar waren, wobei die Höhe meist 15 cm betrug (Bild). Diese wurden vor der entsprechenden Wandöffnung aufgestapelt, bis die benötigte Höhe erreicht war. Durch die Dicke des Betons (25-40 cm) und das damit einhergehende hohe Eigengewicht (je nach Ausführung bis zu 235 kg pro Platte) bildeten diese einen wirksamen Splitterschutz, der bei Bedarf jedoch auch wieder entfernt werden konnte (Bild).